30 March 2020, Saxony, Leipzig The dilapidated villa at HansDrieschStrasse 17, Stock Photo

Verkehrsraumeinschränkungen in der Stadt Leipzig Weitere Informationen nden Sie unter https://www.leipzig.de/baustellen Stand: 25.01.2024 Seite 2 von 7 Stadt Leipzig.
Pförtnerhäuschen der Polizei in der HansDrieschStraße Geheimtipp Leipzig

Übersicht aller Baustellen und Verkehrseinschränkungen in Leipzig. Auf dieser Seite finden Sie alle aktuellen Baustellen/Sperrungen auf öffentlichen Flächen in Leipzig.
Hans Driesch › ArchitekturBlicklicht

Eine Schlagzeile über Leipzig, entdeckt auf lvz.de. Wir benutzten Cookies, um eine Personalisierung (Sprache, Favoriten, usw.) zu ermöglichen.
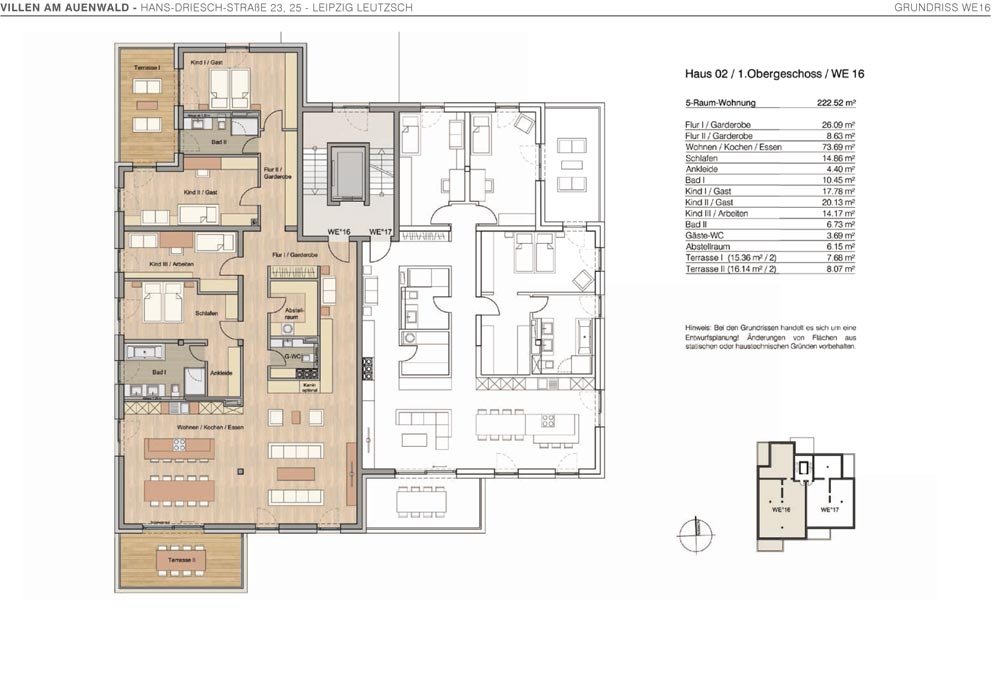
Villen am Auenwald LeipzigLeutzsch Neubau Eigentumswohnung kaufen

Die Verkehrsinformationen zu Leipzig liefern Ihnen einen Überblick über Staus, Unfälle und Baustellen in der Region Leipzig sowie über zähfließenden Verkehr und die Wetterbedingungen (Schnee, Regen, Glatteis) in Leipzig und Umgebung. ViaMichelin - der Verkehr in Leipzig in Echtzeit. Alle Einträge auf ViaMichelin für Leipzig.
HansDrieschStraße 17 im März 2020 Geheimtipp Leipzig

Verkehrseinschränkungen in Leipzig. Auf dieser Seite finden Sie aktuelle Baustellen und Sperrungen in Leipzig. Die Baustellenübersicht unten enthält sämtliche Sperrungen im Leipziger Stadtgebiet, als Listenansicht und verortet auf einer Karte. In der Kartenansicht werden die Einschränkungen grafisch dargestellt.
Elevation of HansDrieschStraße 44, Leipzig, Germany Topographic Map Altitude Map

Kurzfristige Baustelle: Hans-Driesch-Straße stadteinwärts gesperrt. Autofahrerinnen und -fahrer sind kurzfristig am Montag von einer neuen Baustelle in der Hans-Driesch-Straße überrascht.
HansDrieschStraße Leipzig kurzfristige Sperrung ab 20.11.2023
:watermark(assets.rndtech.de/lvz/watermark-plus.svg,50,50,0)/cloudfront-eu-central-1.images.arcpublishing.com/madsack/HXL5HMR5YNA3LGWNDLR7RGBZI4.jpg)
Neue Baustellen in Leipzig - Hans-Driesch-Straße erneut gesperrt. In der Hans-Driesch-Straße gibt es ab Montag einen Baustellenbereich mehr - der Verkehr wird aber mit einer Wechsel-Ampel.
Villa HansDrieschStraße 17 LeipzigDays

Auch in dieser Woche wird auf Leipzigs Straßen wieder gebaut. So wird ab Montag die Hans-Driesch-Straße zwischen Am Wasserschloss und Friesenstraße voll gesperrt. Eine Umleitung erfolgt über die Merseburger oder Georg Schwarz Straße. Auch die Max-Liebermann-Straße ist in Höhe Virchowstraße in Richtung Delitzscher Straße bis Freitag gesperrt.
Leipzig HansDrieschStraße 2 a Art nouveau architecture, Architect, Architecture

Baustellen-Report. . Leipzig: Hans-Driesch-Straße wird erneut Staufalle. Trotz der schlechten Witterung sollen in der nächsten Woche mehrere Bauprojekte im Leipziger Straßennetz starten.
Megastau auf HansDrieschStraße und am Stadion Bauarbeiten auf Landauer Brücke
/cloudfront-eu-central-1.images.arcpublishing.com/madsack/EBLPWRK37QQAHM2XMM4HXEB3DM.jpg)
Verkehrseinschränkungen in Leipzig. Auf dieser Seite finden Sie aktuelle Baustellen und Sperrungen in Leipzig. Die Baustellenübersicht unten enthält sämtliche Sperrungen im Leipziger Stadtgebiet, als Listenansicht und verortet auf einer Karte. In der Kartenansicht werden die Einschränkungen grafisch dargestellt.
Villen am Auenwald LeipzigLeutzsch Neubau Eigentumswohnung kaufen

Die Verkehrsinformationen zu Leipzig-Halle liefern Ihnen einen Überblick über Staus, Unfälle und Baustellen in der Region Leipzig-Halle sowie über zähfließenden Verkehr und die Wetterbedingungen (Schnee, Regen, Glatteis) in Leipzig-Halle und Umgebung. ViaMichelin - der Verkehr in Leipzig-Halle in Echtzeit.
Kontakt LunA

Baustellenliste 2023.04.06.xlsx. Alter Marktweg / Riesaer Straße / Hans-Weigl-Straße. Sondernutzung. Baustellenzufahrt mit temporärer Signalisierung. Für die Dauer der Baustellenzufahrt wird die stationäre Signalanlage am Knoten Riesaer Straße - Paunsdorfer Allee - Hans-Weigel-Straße außer Betrieb genommen und eine temporäre Anlage.
HansDrieschStraße 17 Geheimtipp Leipzig

Das wird heftig und wird für geraume Weile zum Umwege-Parcours für Radfahrer/-innen. Ab Montag, 26. Juli, beginnen auf der Hans-Driesch-Straße im Zentrum-Nordwest Umbauarbeiten, um östlich der.
Villen am Auenwald LeipzigLeutzsch Neubau Eigentumswohnung kaufen

Die Leipziger kommen schon jetzt mit dem Auto nur schwer voran. Der Grund sind zahlreiche Baustellen an zentralen Stellen der Stadt. Nun kommt in der Hans-Driesch-Straße ein weiteres Projekt dazu.
HansDrieschStraße in Leipzig gesperrt radio SAW

Änderungen für Linie 67 wegen Baumaßnahme Hans-Driesch-Straße. Donnerstag, 10. Februar 2022. Wegen der koordinierten Baumaßnahme der Leipziger Wasserwerke gemeinsam mit der Stadt Leipzig in der Hans-Driesch-Straße zwischen Rathenaustraße und Georg-Schwarz-Straße gelten ab 14. Februar Änderungen für die Linie 67. Der Bus fährt vom 14.
Villa HansDrieschStraße 17 LeipzigDays

Staugefahr vor allem im Berufsverkehr droht bis zum Wochenende zwischen Zentrum und Leutzsch. Dort ist ab Mittwoch die Hans-Driesch-Straße stadtauswärts gesperrt.